Plans
Plan de Situation

Plan Masse

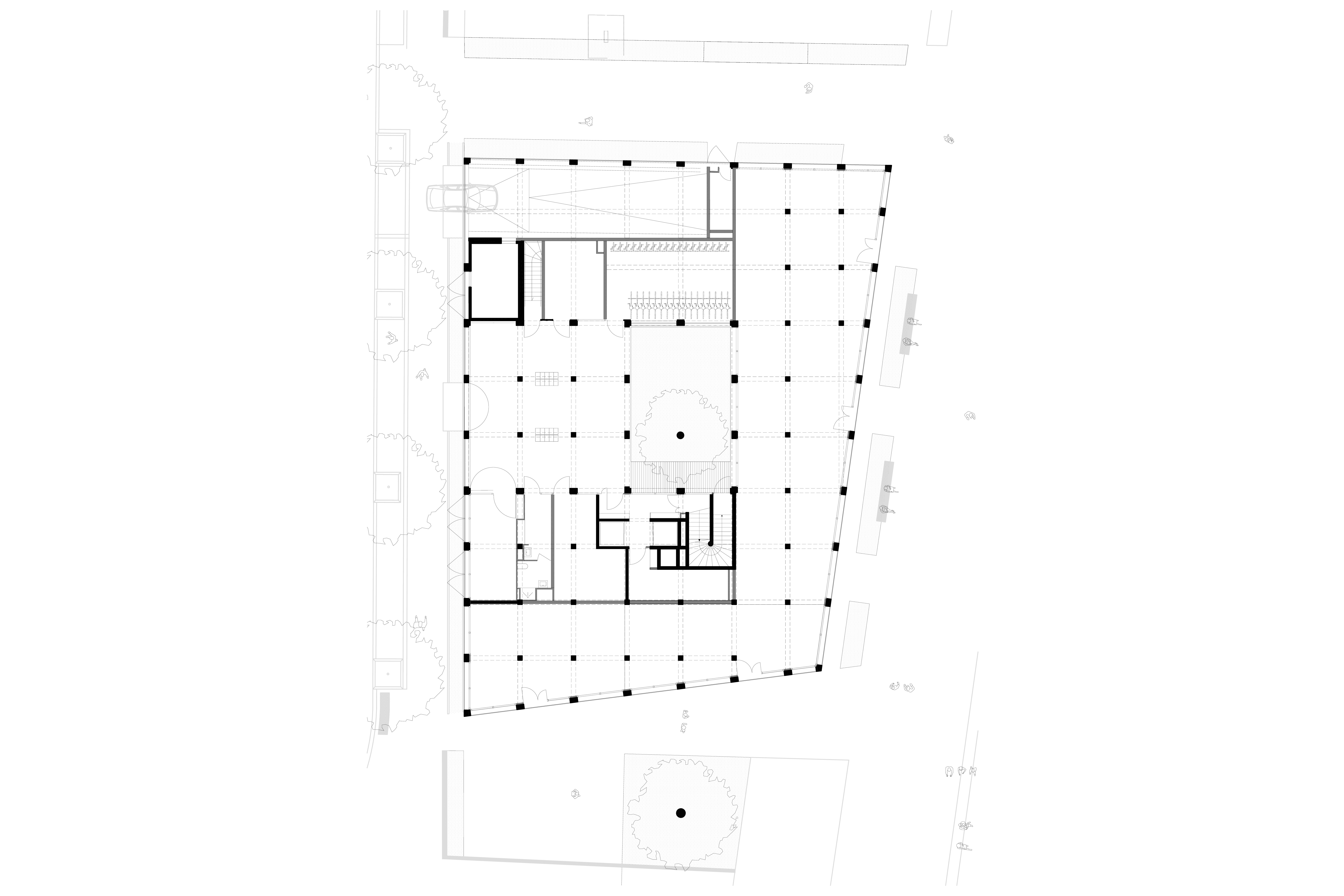
RDC

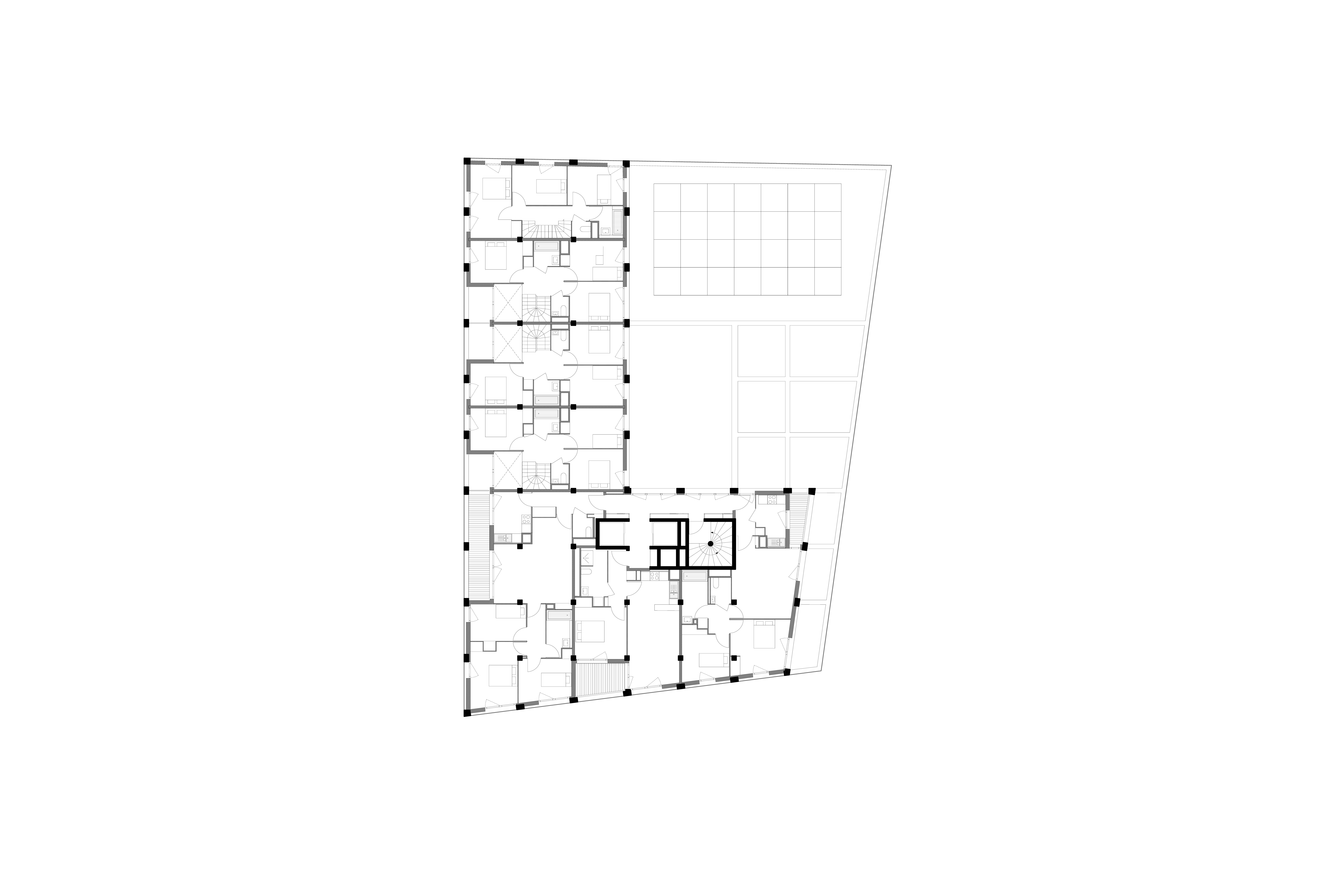
R+1

R+2

R+3

Coupe

Axonométries
Générale

Chantier

Structure

Façade

Croquis

Croquis 2

Croquis 3

Maquette

Maquette 2

Maquette 3

Maquette 4

Photos
Vue 1

Vue 2

Vue 6

Vue 7

Vue 8

Vue 9

Vue 10

Vue 11

Vue 12

Vue 13

Retour au début